
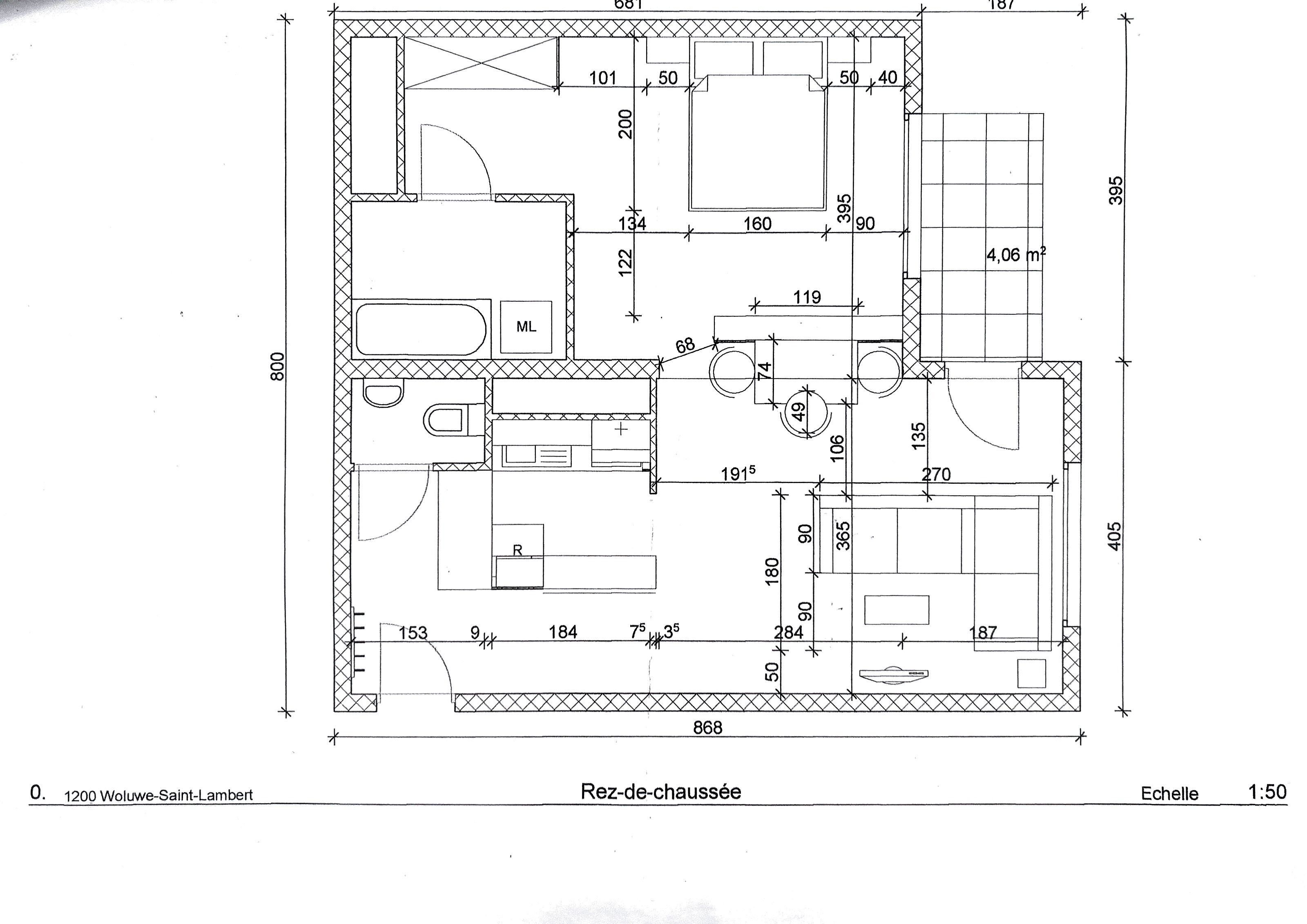
Woluwe Saint Lambert, quartier de Roodebeek à proximité du Woluwe Shopping Center et métro, dans un bloc d'immeuble très bien entretenu et géré, avec superbe parc arboré, très bel appartement au 1er étage, composé comme suit ; Hall d'entrée avec placards et WC séparé, salon avec accès à une belle terrasse ouest (4) et vue arborée, cuisine américaine, espace chambre et salle de bain avec baignoire. Grande cave. Parking en supplément de 20.000 € et facilité de parking devant l'immeuble pour les occupants et visiteurs. Double vitrage partout. Chaudière cogénération dans l'immeuble, communs remis à neuf et ascenseur aux normes, excellent PEB, électricité conforme, état impeccable. Investissement idéal pour premier achat ( abattement fiscale sur les droits de 25 000€ pour premier achat).Charges de /PV/PEB téléchargeable sur notre site, onglet documents. Valeur locative 1050€ minimum. Visites sur rdv 02/732 52 68 info@kvolution.be
Chemin des Deux Maisons 67 - 1200 Woluwe-Saint-Lambert
Référence | 5767029 |
---|---|
Catégorie | Appartement |
Meublé | Non |
Nombre de chambres | 1 |
Nombre de salles de bain | 1 |
Garage | Non |
Terrasse | Oui |
Parking | Oui |
Surface habitable | 64 m² |
Disponibilité | à l'acte |
Etage | 1 |
---|---|
Nombre d'étages | 6 |
Parking intérieur | Oui |
---|---|
Parking extérieur | Non |
Parking(s) intérieur (nombre) | 1 |
Accès handicapés | Oui |
---|---|
Cuisine | Oui |
Chauffage (ind/coll) (type (ind/coll)) | collectif |
Double vitrage | Oui |
Chauffage (type) | gaz |
Type d'ascenseur | personnes |
Type de cuisine | amer. équipée |
Sdb (type) | douche dans le bain |
Double vitrage (type) | isol. thermique et acoustique |
Nbre de toilette(s) (nombre) | 1 |
---|---|
Chambre 1 (surface) | 10 m² |
Nbre de terrasse(s) (nombre) | 1 |
Salle de séjour (surface) | 24 m² |
Salle de bain 1 (surface) | 6 m² |
Orientation de la terrasse 1 | ouest |
Précompte immobilier (montant) | 1142 € |
---|
Charges locataire (montant) | 250 € |
---|
Revenu cad. indexé (montant) | 2416 € |
---|---|
Revenu cadastral (€) (montant) | 1155 € |
Contrôle d'accès | Oui |
---|---|
Type de contrôle d'accès | badge |
Électricité | Oui |
---|---|
Gaz | Oui |
Câbles téléphoniques | Oui |
Eau | Oui |
Châssis (type) | bois |
---|
Surface de terrasse 1 | 4 m² |
---|
Magasins | Oui |
---|---|
Ecoles | Oui |
Transports en commun | Oui |
Centre sportif | Oui |
Autoroute | Oui |
Cave | Oui |
---|
Label PEB (classe) | B |
---|---|
PEB E-SPEC (kwh/m²/an) | 72 |
Emission CO2 (émission CO2) | 19 |
PEB valide jusqu'au (datetime) | 22/12/2033 |
Date du PEB (datetime) | 22/12/2023 |