
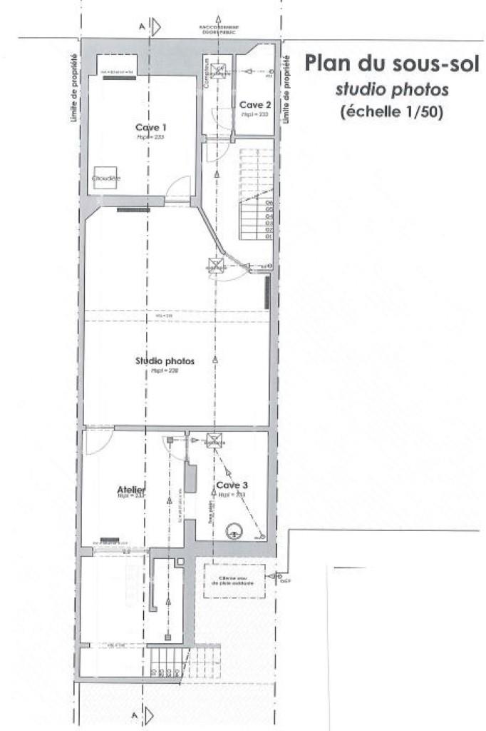
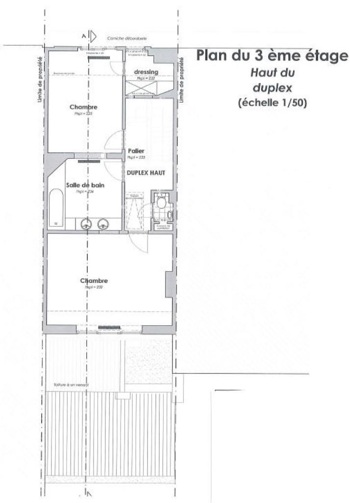
Woluwe Saint Pierre, quartier maison communale-place des Mayeurs, dans un petit immeuble, au deuxième et dernier étage( actuellement 2 appartements),appartement duplex à réaménager + grenier de 20m² , énormément de potentiel après travaux.Permis accepté pour grand duplex + grenier privatif de 20m² soit poss de Triplex de 142m² .Terrasse arrière de 6m² avec vue arborée.Double vitrage.PEB D et G .visites et renseignements 0477 97 18 56 .
Référence | 1980599 |
---|---|
Catégorie | Duplex |
Nombre de chambres | 3 |
Nombre de salles de bain | 2 |